变压器真空炉
变压器真空炉
我们向您介绍一个变压器真空炉us-6s,设计用于干燥电力变压器的固体绝缘。
在电力变压器的生产或维修过程中,通常的做法是从纸绝缘层中除去水分。干燥绝缘的介电强度是未干燥绝缘的20倍,因为水分会影响其介电击穿。
根据变压器的类型,有几种方法可以去除有源部件中的水分。其中之一是用真空炉(真空炉)干燥。
用真空炉干燥电力变压器具有以下优点:
与热风干燥或自然干燥相比,水分蒸发更剧烈;
优化整体性能和缩短处理时间。
globecore提供了一个变压器真空炉的修改,适应客户的具体需要。该设计考虑了生产率、尺寸、放置位置、装载方法、自动化程度等。
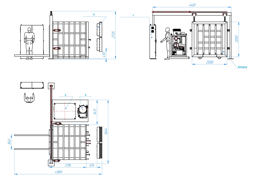
下图为真空干燥柜us-6s。
变压器真空炉主要部件及组件
1–控制柜
2–真空装置BV-1000
3-压缩机
4–油加热器PPM-18
5-蒸汽冷凝器
6-冷凝水收集罐
7-炉室
8-炉室门
9-滑架
工作原理
变压器的有源部分由行车或装载机装载到滑架上。由控制柜的操作员控制台车的移动(电动驱动)、炉门的关闭和打开(气动驱动)。
炉室的加热是由技术用油来完成的,而技术用油又是由流经加热器的油流来达到所需的温度。
请记住,变压器真空炉的价格取决于客户工艺所需的尺寸、容量和技术特征。
附加功能
此外,Globecore为各种原料生产真空干燥室:
1.粉状、糊状物;
2.食品;
3.木材等。
– 所列尺寸为设备的一种可能配置。GlobeCore可根据客户需求定制不同尺寸的真空室。...
Request Price
我们向您介绍一个变压器真空炉us-6s,设计用于干燥电力变压器的固体绝缘。
在电力变压器的生产或维修过程中,通常的做法是从纸绝缘层中除去水分。干燥绝缘的介电强度是未干燥绝缘的20倍,因为水分会影响其介电击穿。
根据变压器的类型,有几种方法可以去除有源部件中的水分。其中之一是用真空炉(真空炉)干燥。
用真空炉干燥电力变压器具有以下优点:
- 与热风干燥或自然干燥相比,水分蒸发更剧烈;
- 优化整体性能和缩短处理时间。
globecore提供了一个变压器真空炉的修改,适应客户的具体需要。该设计考虑了生产率、尺寸、放置位置、装载方法、自动化程度等。
下图为真空干燥柜us-6s。

变压器真空炉主要部件及组件
1–控制柜
2–真空装置BV-1000
3-压缩机
4–油加热器PPM-18
5-蒸汽冷凝器
6-冷凝水收集罐
7-炉室
8-炉室门
9-滑架
工作原理
变压器的有源部分由行车或装载机装载到滑架上。由控制柜的操作员控制台车的移动(电动驱动)、炉门的关闭和打开(气动驱动)。
炉室的加热是由技术用油来完成的,而技术用油又是由流经加热器的油流来达到所需的温度。
请记住,变压器真空炉的价格取决于客户工艺所需的尺寸、容量和技术特征。
附加功能
此外,Globecore为各种原料生产真空干燥室:
1.粉状、糊状物;
2.食品;
3.木材等。
– 所列尺寸为设备的一种可能配置。GlobeCore可根据客户需求定制不同尺寸的真空室。
- 整个变压器铁芯体积的均匀干燥;
- 节约用电;
- 缩短干燥时间;
- 操作简单;
- 去除腔室中的水分。
No publications found.

