US-6S Transformator Vakuumofen
US-6S Transformator Vakuumofen
Wir stellen Ihnen den Transformator-Vakuumofen US-6S vor, der für die Trocknung der Feststoffisolierung von Leistungstransformatoren bestimmt ist.
Eine übliche Praxis bei der Herstellung oder Reparatur von Leistungstransformatoren besteht darin, die Feuchtigkeit aus der Papierisolierung zu entfernen. Die getrocknete Isolierung hat eine dielektrische Stärke, die 20mal größer als die nicht getrocknete ist, da Feuchtigkeit die dielektrische Durchschlagsfestigkeit negativ beeinflusst.
Abhängig von der Art der Transformatoren gibt es mehrere Möglichkeiten, Feuchtigkeit aus dem aktiven Teil zu entfernen. So kann man z.B. diese mit einem Vakuumofen entfernen.
Die Trocknung von Transformatoren mit Vakuumöfen hat folgende Vorteile:
- intensivere Verdunstung der Feuchtigkeit im Vergleich zur Trocknung mit warmer Luft oder natürliche Trocknung;
- optimale Gesamtleistung und reduzierte Verarbeitungszeit
GlobeCore bietet einen Transformator-Vakuumofen mit Modifikationen an, die an die spezifischen Bedürfnisse des Kunden angepasst sind. Das Design berücksichtigt Produktivität, Abmessungen und Platzierung, Ladeverfahren, Automatisierungsgrad usw.
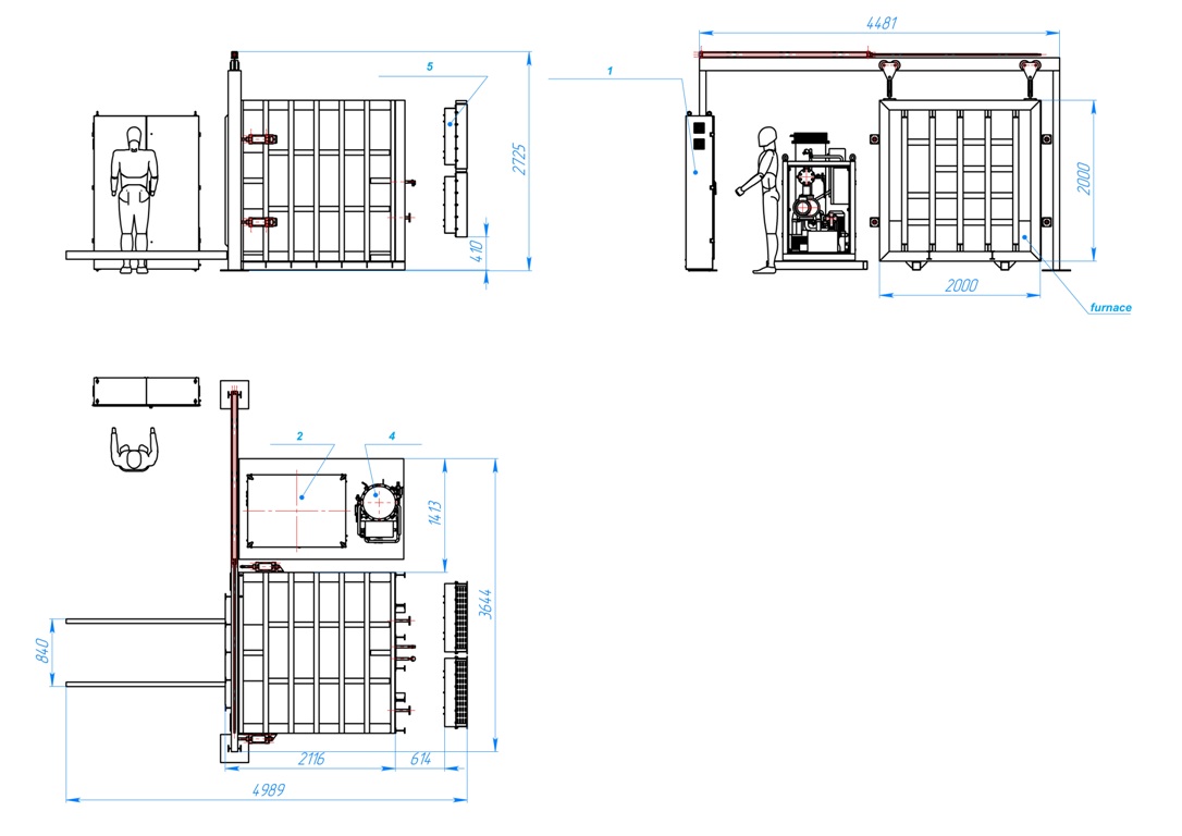
Das folgende Bild zeigt den Vakuumtrockenschrank US-6S.
Transformator Vakuumofen: die wichtigsten Komponenten und Baugruppen
1 – Schaltschrank
2 – Vakuumeinheit BV
3 – Kompressor
4 – Ölerhitzer PPM
5 – Dampfkondensator
6 – Kondensatsammelbehälter
7 – Ofenkammer
8 – Tür zur Ofenkammer
9 – Schiebeschlitten
Die Trocknung der Transformatorisolierung mit dem Vakuumofen US-6S zeichnet sich durch eine automatische Überprüfung und Aufzeichnung wichtiger Betriebsparameter aus: Heiztemperatur, Betriebsvakuum in der Kammer, Änderungen des Feuchtigkeitsgehalts der Isolierung und Kondensat in der Kammer. Es ist auch möglich, die aufgelisteten Parameter im Speicher des Controllers automatisch aufzuzeichnen, um eine Datei mit Bericht und Protokoll zu erstellen.
Funktionsprinzip
Der aktive Teil des Transformators wird durch einen Laufkran oder einen Lader auf den Schlitten geladen. Die Steuerung der Schlittenbewegung (motorischer Antrieb), das Schließen und Öffnen der Türen der Ofenkammer (pneumatischer Antrieb) erfolgt durch einen Bediener aus dem Steuerschrank.
Die Beheizung der Ofenkammer erfolgt durch technisches Öl, das seinerseits durch eine Öldurchlaufheizung auf die erforderliche Temperatur gebracht wird.
Um das Bedienungspersonal vor Verbrennungen zu schützen und zu vermeiden, dass die Umgebungsluft die Trocknung des Transformators beeinträchtigt, ist die Ofenkammer aus rostfreiem Stahl hergestellt und isoliert. Das System enthält auch einen Kondensator, der durch fließendes Wasser gekühlt wird.
Der Schaltschrank separiert und enthält:
- Prozesskontrolle;
- Prozessdetektor;
- Schutzsystem;
- Diagnosesystem für mögliche Fehlfunktionen
Das Steuersystem überwacht kontinuierlich den Ofenstatus und -betrieb, die Parameter der Vakuumeinheit und den Zustand der behandelten Feststoffisolierung.
Der Preis für einen Transformator-Vakuumofen hängt von den erforderlichen Abmessungen, der Kapazität und den technologischen Eigenschaften des Kundenprozesses ab.
| № |
Parameter |
Bedeutung |
| Trocknungskammer | ||
| 1 | Interne Abmessungen, mm max | |
| -Tiefe |
2000 |
|
| -Breite |
1300 |
|
| -Höhe |
1600 |
|
| Heizblock | ||
| 2 | Heizdruck, kW |
45 |
| 3 | Temperatureinstellbereich, °C |
20…120 |
| 4 | Anzahl Heizelemente, Stck |
15 |
| Vakuumblock | ||
| 5 | Leistung, m2/St |
1000 |
| 6 | Gesamtleistung der Motoren, kW |
11 |
| 7 | Das erreichbare Vakuumniveau, mbar |
1 |
| Zirkulationssystem | ||
| 8 | Leistung, m3/St |
2000 |
| 9 | Lüfterleistung, kW |
2,2 |
| Abgassystem | ||
| 10 | Leistung, m3/St |
2000 |
| 11 | Lüfterleistung, kW |
1,1 |
| Kondensationssystem | ||
| 12 | Leistung des Kühlers (Chiller), kW |
3,0 |
| 13 | Kühlleistung des Kühlers (Chiller), kcal/h |
6000 |
| 14 | Kondensationsfläche, m2 |
7,5 |
| 15 | Der Wärmetauschertyp (Kondensator) |
Rohrbündelwärmetauscher |
| Pneumatisches System | ||
| 16 | Kompressorleistung, kW |
1,1 |
| 17 | Druck, bar |
9 |
*– Die angegebenen Abmessungen beziehen sich auf eine der möglichen Ausführungen der Anlage. GlobeCore fertigt Vakuumkammern in verschiedenen Größen nach Kundenwunsch.
GlobeCore produziert Vakuum-Trockenkammern für verschiedene Rohstoffe:
- Puder und Pasten;
- Lebensmittel;
- Holz, etc.
Vorteile
- gleichmäßige Trocknung des gesamten Transformatorkernvolumens;
- wirtschaftliche Nutzung von Strom;
- reduzierte Trocknungsdauer;
- einfache Bedienung;
- Steuerung und Protokollierung von Prozessparametern;
- Entfernung von Feuchtigkeit aus der Kammer;
- Die Kammer besteht aus korrosionsbeständigem Material.
Keine Veröffentlichungen gefunden.


